
Centro de Ozonioterapia de Recife – Projeto Técnico e Regularização de Segurança Contra Incêndio
Cliente: Centro de Ozonioterapia de Recife – Raniely Thomé
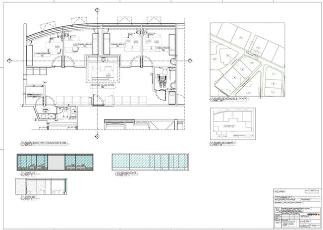
Endereço: Rua Padre Carapuceiro, nº 752 – Salas 1107 e 1108 – Boa Viagem – Recife/PE
Responsável Técnica: Engª Rízia Francielly da Costa Barbalho – CREA-PE 181786607-9
Área construída: 106,09 m²
Pavimentos: 1
Tipo de Ocupação: Escritório / Clínica de Saúde
Etapas do Projeto – Centro de Ozonioterapia de Recife
Segurança, conformidade e compromisso com a educação em cada detalhe
1. Diagnóstico Técnico e Levantamento do Empreendimento
Levantamento minucioso das condições da clínica, identificando riscos, pontos de vulnerabilidade e adequações necessárias para garantir segurança e conformidade regulatória.
3. Documentação Técnica Completa e Memorial Descritivo
Entrega de toda a documentação necessária:
• Plantas técnicas em conformidade com o layout real (as built);
• Detalhes construtivos e simbologias;
• Memória de cálculo e memorial descritivo do sistema de prevenção e combate.
5. Execução Estratégica e Manutenção Corretiva dos Sistemas
Instalação dos itens de segurança, conforme projeto aprovado:
✔ Extintor de incêndio ABC de 6kg instalado com suporte universal;
✔ Sistema de iluminação de emergência com luminárias de 300 lumens;
✔ Sinalização fotoluminescente de emergência e rotas de fuga;
✔ Adequações físicas para garantir saídas e acessos seguros
7. Suporte Técnico Completo até a Regularização Final
Acompanhamento durante vistorias e interações com os bombeiros até a emissão do AVCB – Atestado de Vistoria do Corpo de Bombeiros, com suporte direto ao cliente em cada etapa
2. Desenvolvimento de Projetos Técnicos Personalizados
Elaboração do Projeto de Prevenção e Combate a Incêndio (PPCI), com base nas diretrizes do CBM-PE, normas COSCIP e ABNT aplicáveis a ambientes clínicos.
4. Gestão de Aprovação e Atendimento a Exigências
Entrega de toda a documentação necessária:
• Plantas técnicas em conformidade com o layout real (as built);
• Detalhes construtivos e simbologias;
• Memória de cálculo e memorial descritivo do sistema de prevenção e combate.
6. Emissão de Laudos Técnicos e ARTs de Responsabilidade
Emissão de Laudo de Incêndio e todas as Anotações de Responsabilidade Técnica (ARTs), conforme legislação vigente, assegurando credibilidade e respaldo técnico.
Veja oque o proprietário(os) relatou dos nossos serviços:










